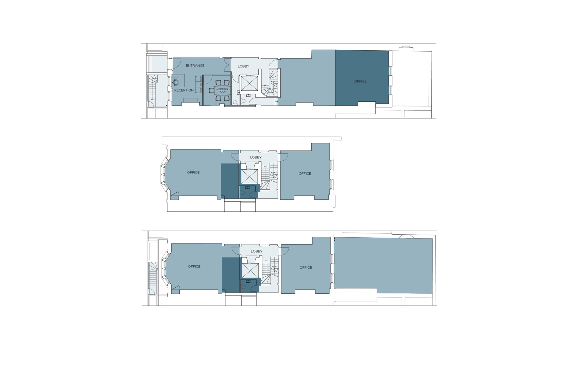
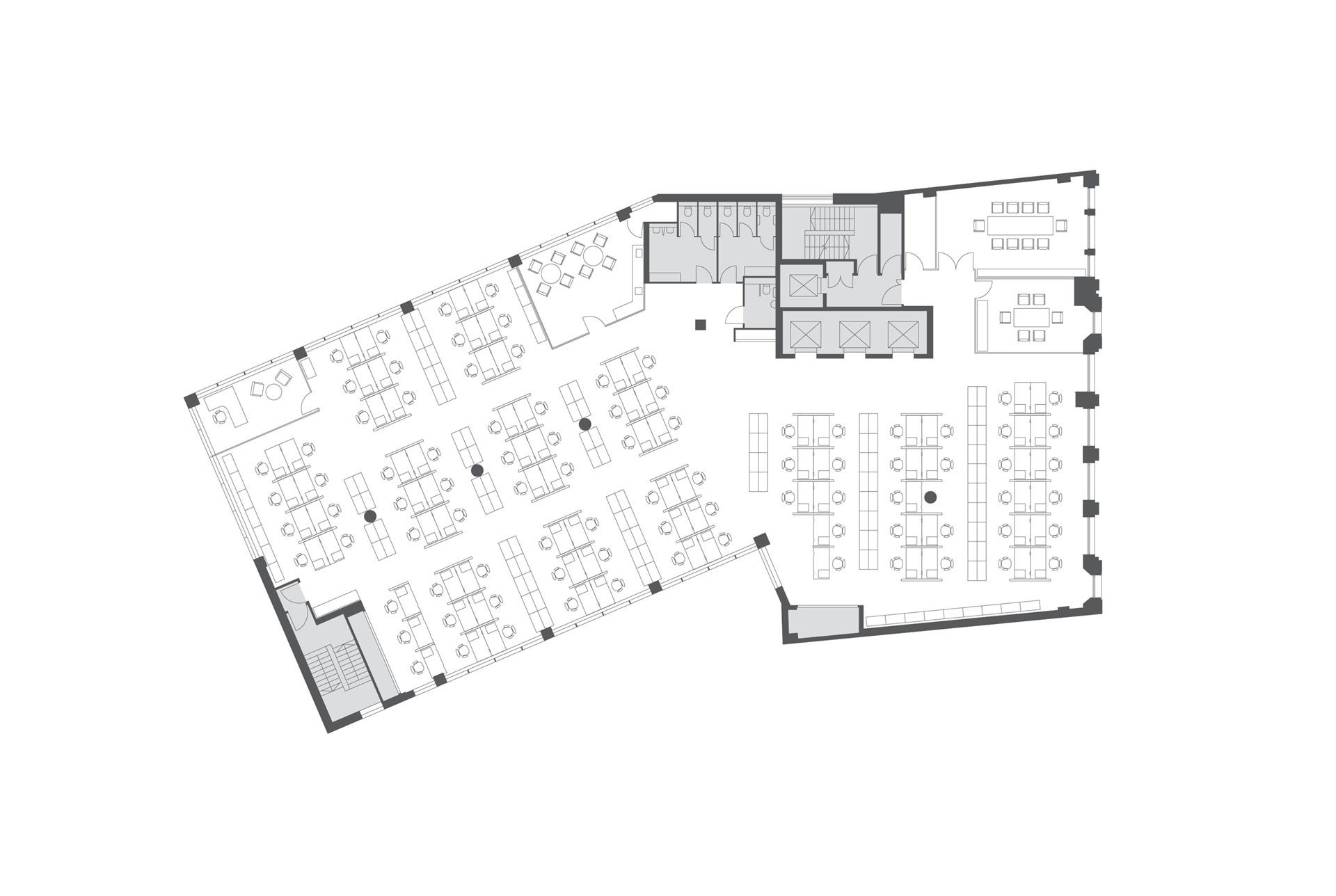
Artwork of a variety of floor plans from simple to complex floor layouts for office and residential developments, including projects for Rosalp Residences, 7 Bishopsgate, and 111 Old Broad Street.
The following work was completed at; Cooper Rose Design.









